Butikslokal uthyres – attraktivt läge på Importgatan 4, Ängelholm
Nu finns möjlighet att hyra en butikslokal med bra exponering i markplan på Importgatan 4 i Ängelholm. Lokalen har ett strategiskt läge i det expansiva området, med närhet till etablerade verksamheter, god tillgänglighet och smidig anslutning till större vägar som E6 och bara 15 min från E4
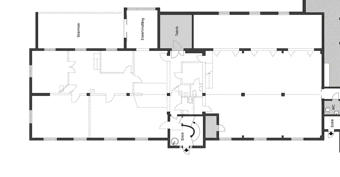
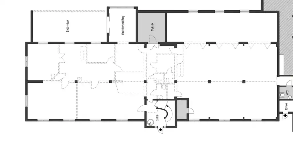
Lokalen erbjuder öppna och flexibla ytor som enkelt kan anpassas efter verksamhetens behov – perfekt för butik, showroom eller annan kundnära verksamhet. De stora fönsterpartierna ger ett fint ljusinsläpp och goda möjligheter till skyltning som stärker synligheten ut mot förbipasserande.
Här finns goda parkeringsmöjligheter i direkt anslutning till fastigheten, vilket gör det enkelt för både kunder och personal att ta sig till lokalen.
En utmärkt möjlighet för företag som vill etablera sig i ett växande handels- och verksamhetsområde.
Välkommen att kontakta oss för mer information eller visning!
Visningar
Visas efter önskemål
Information
Visning - Kontakt
Martin Lamberth